加载中...
帖子
关注
粉丝
首页
学堂
官方分类
用户
任务中心
登录
个人
我的信息
消息通知
帐号
帐号信息
修改密码
分类
我管理的
我加入的
邀请信息
申请信息
钱包
积分明细
导航
2023-05-12
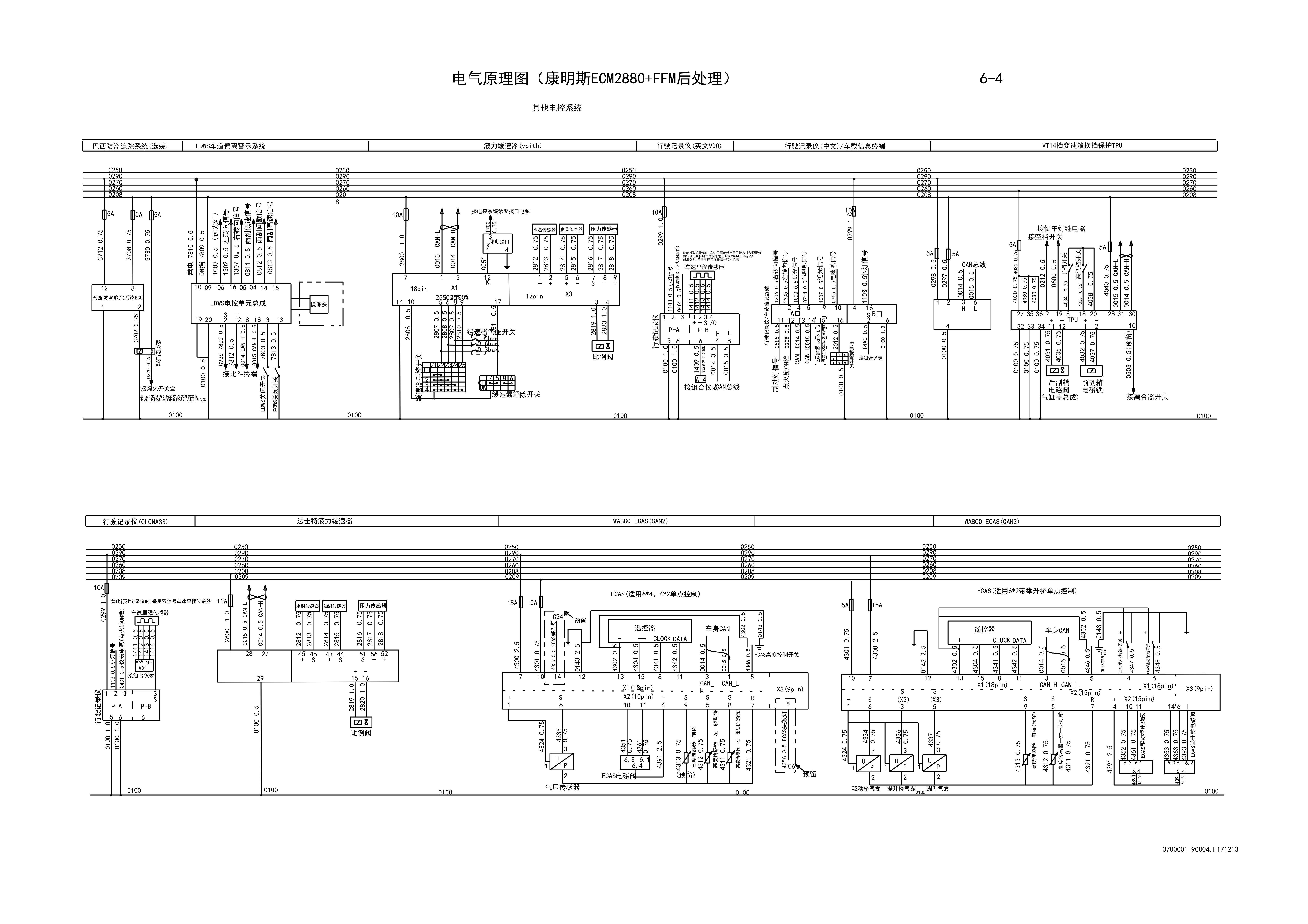
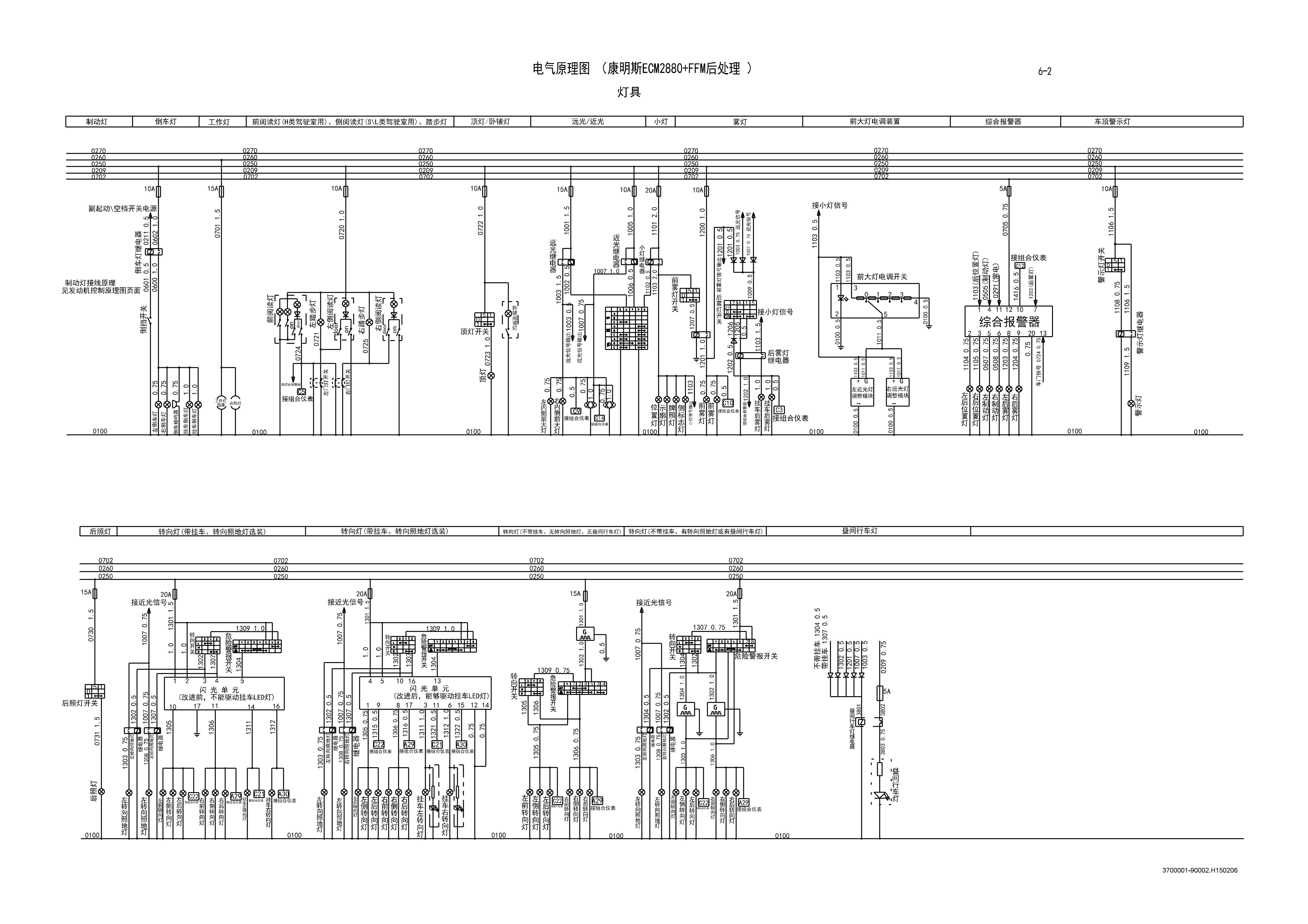
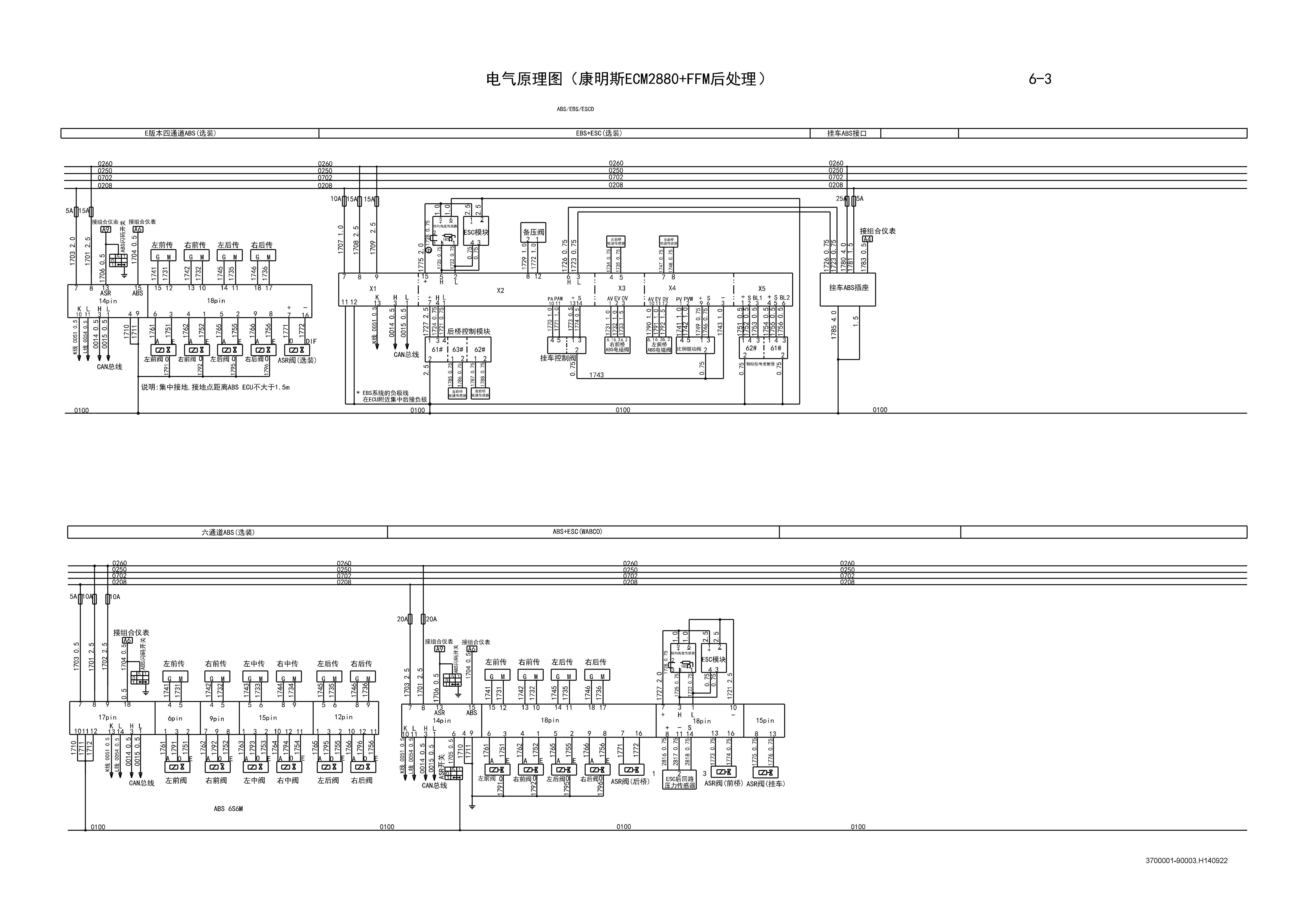
D310.T12M.T13M.K14M.T14M.K14N.T15M.T83M.H1712
1
赵新丽
D310.T12M.T13M.K14M.T14M.K14N.T15M.T83M.H1712
东风电路图
请登录后评论